【外観】
- 物件名
- 和光市下新倉4丁目 高台立地 大型戸建
- 価格
- 3,897万円
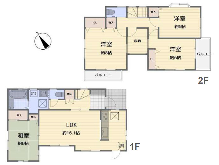
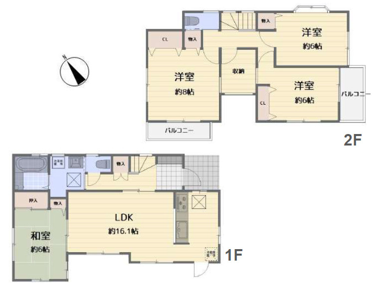
- 建物面積
- 124.32㎡
- 土地面積
- 30.55坪(101.00㎡)
- 築年月
- 2008年9月(築17年)
- 総戸数
- 1戸
- 設備条件
-
- 閑静な住宅地
- 設備(その他)
-
-
-
- 駐車場/月額
- 有(1台)/-
- 土地権利
- 所有権
- 国土法届出
- 不要
- 用途地域
- 第一種中高層住居専用
- 取引態様
- 仲介
- 引渡し
- 相談
-
コンビニエンスストア
ローソン 和光下新倉店
447m(6分)
-
公園
谷中児童遊園地
724m(10分)
-
スーパー
ベルク 和光白子店
746m(10分)
-
ショッピングセンター
坂下ショッピングセンター
838m(11分)
-
幼稚園
新倉幼稚園
841m(11分)
-
幼稚園
やまと幼稚園
842m(11分)
-
保育園
リトルスター保育園さつきちゃんのおうち
879m(11分)
-
ドラッグストア
ドラッグセイムス 白子店
890m(12分)
-
保育園
しらこ保育園
1109m(14分)
-
小学校
和光市立下新倉小学校
1117m(14分)
-
スーパー
オーケー 和光下新倉店
1166m(15分)
-
図書館
和光市図書館 下新倉分館
1189m(15分)
-
スーパー
miniピアゴ 成増3丁目店
1225m(16分)
-
スーパー
ヤオコー 和光丸山台店
1232m(16分)
-
総合病院
慈誠会成増病院
1248m(16分)
-
中学校
和光市立大和中学校
1374m(18分)
-
ディスカウントショップ
MEGAドン・キホーテ 成増店
1798m(23分)
-
ショッピングセンター
エキアプレミエ 和光
1809m(23分)
-
ショッピングセンター
イトーヨーカドー 和光店
2062m(26分)
和光市下新倉4丁目 高台立地 大型戸建の基本情報
和光市下新倉4丁目 高台立地 大型戸建の詳細情報
和光市下新倉4丁目 高台立地 大型戸建で募集中の物件
周辺施設
近隣の物件
和光市下新倉4丁目 高台立地 大型戸建

